casa demo
Interesante proyecto de transformación de una vivienda unifamiliar en una casa demo (demostración) para una empresa especializada en instalaciones domóticas. Se parte de una edificación clásica de veraneo de la costa de los años setenta, de una planta de altura, con muros de carga y cubiertas inclinadas de tejas. Dos jardines, uno previo a la entrada, y otro con una piscina, conforman los espacios exteriores. El objetivo: transformarla en una vivienda contemporáneo donde mostrar las posibilidades de la domótica en el entorno doméstico.
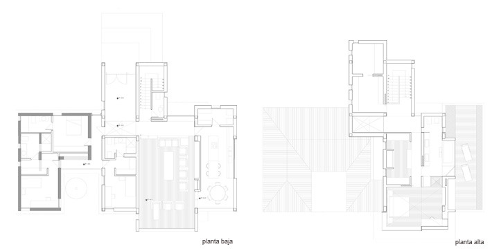
La concepción de un espacio “comercial” sin perder de vista lo que sería una vivienda habitada, marcan el ritmo del proyecto. Se proyecta un nuevo volumen sobre el salón para construir el dormitorio principal. La caja de escalera y otro nuevo cuerpo volado sobre la puerta de acceso, así como la nueva disposición de huecos en la fachada, terminan por dar un nuevo aspecto a la edificación, en un lenguaje arquitectónico contemporáneo. Los exteriores se rediseñan para reforzar esta nueva imagen.
Tipología: Reforma y ampliación vivienda unifamiliar aislada Emplazamiento: Urb. Playa del Sol, 40. Estepona (Málaga) Fecha: 2005 Promotor: Privado Arquitectos: Octavio Sánchez Dávila + Daniel Rincón de la Vega Superficie: 410,00 m²





